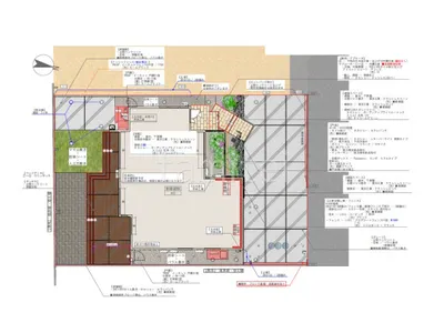
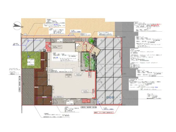
広々としたウッドデッキが魅力的な新築ハイクラス オープン外構
プラン内容 No.3345
※データは見積当時のものです
- 見積参考価格
- 1015 万円
- 工事面積
- 205m 2
- 工事種別
- 新築外構
- 地形
- 四角
- 方位
- 北
- 車の台数
- 3台以上
- 登録日
- 2025-09-28
イメージパース・図面






コメント
門まわりに大判タイル タカショー セラレバンテのタイル門柱を設置し、重厚感のあるタ上質な印象を演出します。 玄関階段は浮遊階段加工を施し、モダンで高級感のある雰囲気に仕上げました。 また、ロックガーデンスペースを配置し、立体感がありつつ季節の移ろいを楽しむことができます。 お庭には人工芝と大判タイル タカショー セラレバンテを敷き、メンテナンスフリーで機能的な空間に。 さらに、天然木ウッドデッキのウリンデッキを設け、天然木の温かみを感じられるリラックススペースに仕上げました。






